Trädgårdsdesign
För att skapa en trädgård att trivas i och som är funktionell och hållbar över lång tid krävs noggrann planering. Många kunder har också en önskan om att trädgården ska vara lättskött samt vacker även vintertid vilket kräver god kunskap om växternas egenskaper och trädgårdens förutsättningar.

Inspirationspaket
Inspirationspaketet innehåller en konsultation, trädgårdsanalys och en digitalt ritad trädgårdsritning. Ritningen beskriver trädgårdens övergripande form. Tex placering och utformning av entré, rabatter, sittplatser, köksträdgård och poolområde. Ett urval växter och hårda material föreslås. Beskrivande text och inspirationsbilder bifogas för att beskriva trädgårdens karaktär och känsla .
Inspirationspaketet passar dig som har många egna idéer och tankar kring trädgårdsdesignen men inte riktigt får ihop helheten och växtsammansättningen.
Designpaket
Önskas en mer utförlig trädgårdsdesign levererar vi ett mer omfattande underlag för ditt trädgårdsprojekt. Vi går in på detaljer kring trädgårdens form och karaktär med exakta mått, förslag på material till alla hårda ytor, ljussättning, en växtlista över trädgårdens träd, buskar och perenner. Designpaketet formas efter projektet, men kan exempelvis innehålla:
- Skalenlig trädgårdsritning
- Digitala 3D-bilder
- En inspirerande moodboard och texter
- Planteringsplan och växtlista
- Skötselplan för trädgårdens gröna delar
- Bygglovshandlingar
- Konstruktionsritningar över pergola, staket mm
- Anläggningsplan (läs mer längre ner)
- Ljusdesign (läs mer längre ner)
Vi erbjuder även inköp och plantering av växter samt projektledning.


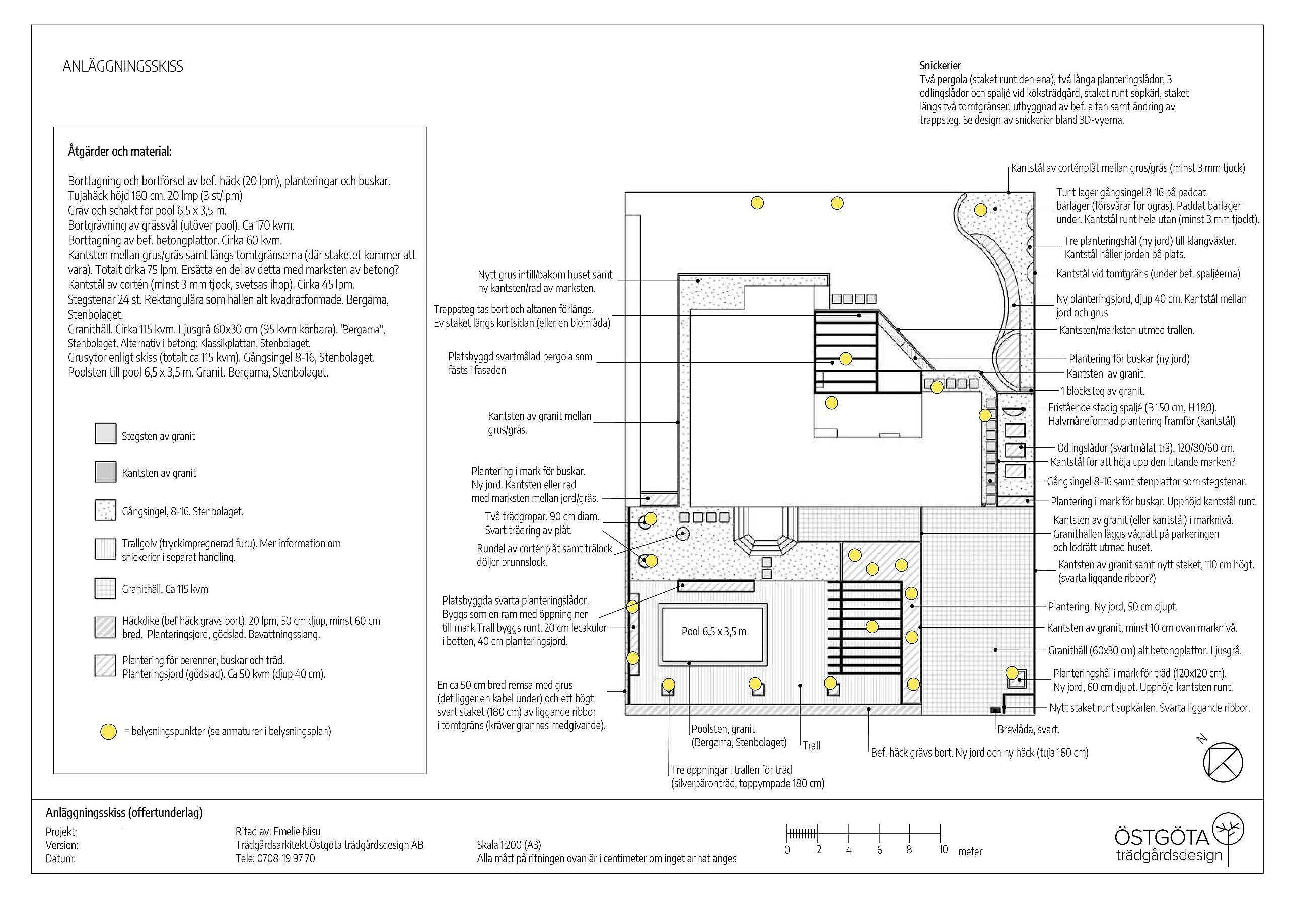
Anläggningsskiss
En anläggningsskiss är ett bra underlag att överräcka till de som ska utföra det praktiska arbetet med designförslaget. Planen är också värdefull att ha när du ska begära och jämföra offerter av olika anläggare. Anläggningsskissen kan innehålla:
- Exakta mått på olika ytor för att beräkna åtgång av stenplattor, grus, trallvirke osv
- Höjd och bredd på murar
- Hur kantsten/kantsten ska monteras
- Konstruktion på exempelvis pergola och staket (samt dimensioner på virke)
- Förslag på material samt åtgång
- Planteringsdjup på planteringar samt jordtyp
- Belysningspunkter (för dragning av tomrör till elkablar)
Ljusdesign
För att en trädgård ska vara vacker och användbar alla årets månader krävs en bra ljussättning i trädgårdsdesignen. Att exempelvis belysa träd, planteringar, berg och plank skapar vackra blickfång såväl utomhus som inifrån huset. Genom att belysa husets baksida, gångstråk, trappor och parkering ökar dessutom tryggheten och säkerheten.
Vi hjälper dig gärna med ljusdesignen genom att ta fram förslag på armatur samt placering för bästa resultat.
Läs mer om ljussättning här.
